Modern mieten entspannt leben.
In diesem Neubau mit luxuriöser Ausstattung werden 7 Wohnungen vermietet, darunter eine Penthouse-Wohnung mit 4 Zimmern, eine 2-Zimmer- sowie 5 3-Zimmer-Wohnungen.
Wohnung 1: Erdgeschoss 91 m² 3 Zimmer Kaltmiete: 1365 EUR
Wohnung 2: Erdgeschoss 77 m² 2 Zimmer Kaltmiete: 1155 EUR
Wohnung 3:
Wohnung 4: 1. Obergeschoss 89 m² 3 Zimmer Kaltmiete: 1335 EUR
Wohnung 5: 2. Obergeschoss 89 m² 3 Zimmer Kaltmiete: 1335 EUR
Wohnung 6:
Wohnung 7: Staffelgeschoss 133m² 4 Zimmer Kaltmiete: 2130 EUR
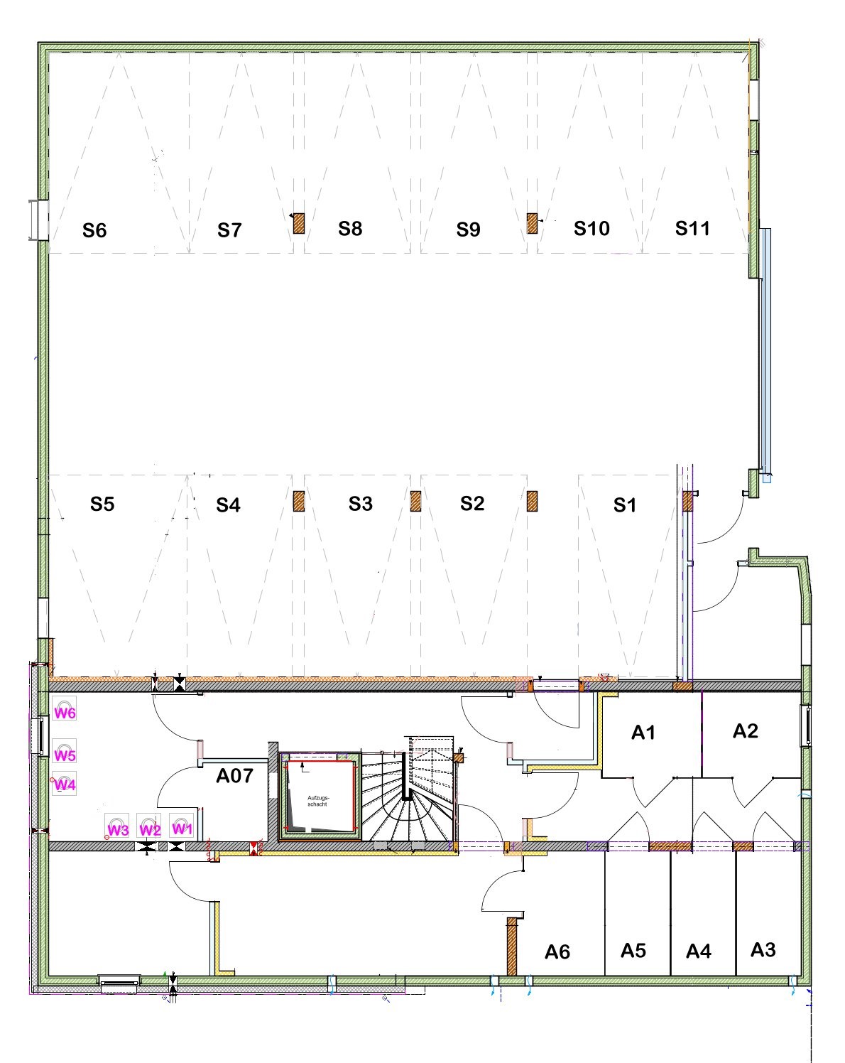
Zu jeder der 7 Wohnungen gehört 1 Tiefgaragen-Stellplatz. Da 11 Tiefgaragen-Stellplätze vorhanden sind, ist es bei Bedarf evtl. möglich noch einen 2. Tiefgaragen-Stellplatz anzumieten.
Diese moderne 3-Zimmer-Neubauwohnung mit Aufzug und Terrasse befindet sich im Erdgeschoss eines Neubaus in einem familienfreundlichen Wohngebiet und überzeugt durch eine kompakte und gut durchdachte Raumaufteilung.
Die Diele bietet Platz für eine Garderobe und erschließt alle Räume direkt und übersichtlich. Der offen gestaltete Wohn-, Ess- und Küchenbereich bildet den zentralen Lebensmittelpunkt der Wohnung. Der Wohn- und Essbereich lässt sich flexibel möblieren und punktet durch viel Tageslicht. Vom Wohnbereich aus besteht Zugang zur Terrasse. Sie erweitert den Wohnraum und bietet Platz für Sitzmöglichkeiten, um entspannte Stunden im Freien zu verbringen. Ein Abstellraum (AR) innerhalb der Wohnung sorgt für zusätzlichen Stauraum und ist praktischerweise aus dem Küchenbereich zugänglich.
Ein separates Gäste-WC ergänzt das Raumangebot sinnvoll und erhöht den Wohnkomfort im Alltag. Das gut geschnittene Tageslicht-Badezimmer bietet eine moderne Ausstattung und punktet mit einer großzügigen begehbaren Dusche mit luxuriösem Touch.
Das Schlafzimmer bietet ausreichend Platz für Bett und Kleiderschrank. Ein weiteres Zimmer eignet sich ideal als Kinder-, Gäste- oder Arbeitszimmer und bietet so vielfältige Nutzungsmöglichkeiten.
Die Wohnung verfügt neben der gehobenen Ausstattung und der Fußbodenheizung über ein weiteres technisches Highlight. Alle Fenster verfügen über eine integrierte, geregelte Grundlüftung (RegelAir) zur kontrollierten Frischluftzufuhr bei geschlossenem Fenster. Dies unterstützt ein angenehmes Raumklima und trägt zur nutzerunabhängigen Feuchteschutzlüftung bei.
Das Wohnungsangebot wird durch eine Gemeinschaftswaschküche, einen Kellerraum, einen Fahrradraum sowie einen Stellplatz in der hauseigenen Tiefgarage abgerundet.
Haustiere sind in diesem Objekt nicht gestattet.
Die Wohnung befindet sich in ruhiger, familienfreundlicher Lage im Neubaugebiet von Nörvenich und überzeugt durch eine sehr gute Verkehrsanbindung. Einige Buslinien sind fußläufig erreichbar und sorgen für eine schnelle Verbindung in die umliegenden Städte.
Auch mit dem Auto sind Sie bestens angebunden: Die Autobahnauffahrt ist in ca. 9 Minuten erreichbar, wodurch die Autobahnen A1, A61 und A4 schnell zugänglich sind und Verbindungen nach Köln, Koblenz, Aachen sowie ins nahegelegene Düren ermöglichen.
Auch für den täglichen Bedarf ist alles im Ort vorhanden. Neben mehreren Supermärkten sind auch Bäckereien, Cafés, Ärzte, eine Apotheke und ein Friseur fußläufig erreichbar.
Neben der Grundschule, die in etwa 15 Minuten zu Fuß erreichbar ist, befindet sich auch ein Kindergarten im Ort.
Weitere Kinderbetreuungseinrichtungen sowie weiterführende Schulen und zusätzliche Einkaufs- und Freizeitangebote sind in der näheren Umgebung zu finden.
Besonders hervorzuheben ist die familienfreundliche Umgebung: Ein großer Spielplatz befindet sich direkt im Quartier und ist bequem erreichbar. Die naturnahe Lage mit umliegenden Feldern und Grünflächen bietet zudem einen hohen Erholungswert und lädt zu Spaziergängen und Freizeitaktivitäten im Grünen ein. Der hohe Freizeitwert wird durch zwei Fitnessstudios, eine Grün- und Parkanlage sowie ein Modegeschäft unterstrichen.
Ausstattungsmerkmale:
Neubauwohnungen mit stilvoller Premium-Ausstattung, energieeffizienter Bauweise und Ausführung im KfW-40-Standard
Repräsentatives Treppenhaus mit eleganten Granittreppen und Edelstahlgeländern
Großzügige Terrasse
Wasseranschluss auf der Terrasse
Exklusiv ausgestattete Bäder mit Markenkeramik von Villeroy und Boch und Geberit, edlen Hansgrohe-Armaturen sowie ausgesuchtem Feinsteinzeug
3-fach verglaste Fenster für hohen Wohnkomfort und ausgezeichnete Energieeffizienz
Design-Vinylboden in eleganter Eichenoptik in den Wohn- und Schlafräumen
Personenaufzug in Edelstahlausführung
Video-Klingelanlage
Integrierte Fensterlüftung für ein angenehmes Raumklima
Fußbodenheizung
elektrische Rollläden
Kellerraum
Fahrradraum
Gemeinschaftswaschküche
Abschließbare Tiefgarage; ein Stellplatz ist verpflichtend, ein weiterer Stellplatz optional verfügbar
Alle Stellplätze sind für E-Mobilität vorgerüstet; ein Ladepunkt inklusive Wartungsservice kann bei Einzug gegen monatliche Pauschale aktiviert werden